070-5117571 info@i4housing.nl

Duinweg 6, te Wassenaar

€ 1.825.000,- k.k.

Duinweg 6, te Wassenaar

4SALE
MODERNE NIEUWBOUWWONING OP TOPLOCATIE IN DE KIEVIET!
BINNEN EEN JAAR DEZE DROOMVILLA BETREKKEN?
Dankzij het complete pakket van architectonisch ontwerp, vergunningen en aanneem overeenkomst is dit zonder meer mogelijk.

NIEUWBOUWHUIS
Ontdek deze indrukwekkende nieuw te bouwen rietgedekte villa. Gelegen op A-locatie in De Kieviet.
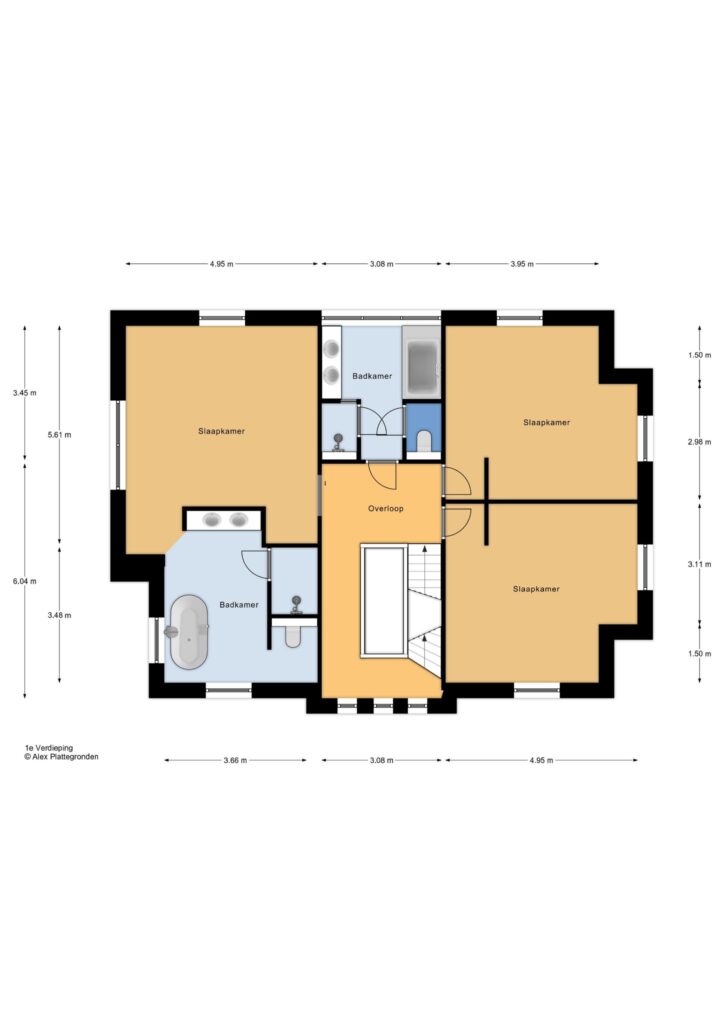
Het perceel is 711m² groot en de woning heeft een woonoppervlak van circa 260m².

GOED OM TE WETEN:
- Realisatie van de woning (casco +)* via Buitenhuis Villabouw bedraagt om en nabij € 825.000,- inclusief BTW (waarover geen overdrachtsbelasting wordt betaald);
- Koopovereenkomst betreft bebouwde grond inclusief fundering €1.000.000,- ;
- Perceel: 711m²;
- Woonoppervlakte: circa 260m²;
- Casco+ oplevering: inclusief installaties, exclusief eindafwerking*;
- Binnen een jaar te betrekken dankzij volledig pakket van ontwerp, vergunningen en aanneemovereenkomst;
- Buitenhuis Villabouw kan, indien gewenst, tuin en bijgebouw ook verzorgen!

* casco+ oplevering betekent dat alle installaties zijn inbegrepen, maar de eindafwerking van vloeren, binnenschilderwerk, keuken en badkamers zijn exclusief. Dit geeft je de vrijheid om het interieur geheel naar eigen wens te stylen.

Mis deze kans niet!
Wij plannen graag een afspraak voor u in.

--------------------------------------------------

4SALE
MODERN NEW-BUILD HOME IN A PRIME LOCATION IN DE KIEVIT!
WOULD YOU LIKE TO LIVE IN THIS DREAM VILLA WITHIN A YEAR?
Thanks to the complete package of architectural design, permits, and construction contract, this is absolutely possible. Buitenhuis Villabouw can also take care of the realization of the garden and garage, if desired.

NEW BUILD HOUSE
Discover this impressive new thatched villa, offered with a ready-made construction contract from the renowned builder Buitenhuis Villabouw. Located in a prime location in De Kieviet.
The plot is 711m² and the house has a living area of approximately 260m².

GOOD TO KNOW:
- Construction of the house (casco +)* by Buitenhuis Villabouw amounts to €825,000 including VAT (not subject to transfer tax);
- The purchase agreement concerns plot (€1.000.000).
- Plot: 711m²;
- Living area: approximately 260m²;
- Shell-plus delivery: including installations, excluding final finishes;
- Move-in within a year thanks to the complete package of design, permits, and construction contract;
- Buitenhuis Villabouw can also take care of the garden and garage, if desired!

* casco+ delivery means that all installations are included, but the final finishes such as flooring, interior painting, kitchen, and bathrooms are excluded. This gives you the freedom to style the interior entirely according to your own preferences

Don’t miss this opportunity!
We would be happy to schedule a viewing for you.

Plattegronden

In de buurt

Portret foto van Shannon Terlouw
Marketing specialist en verkoopstrateeg
Shannon Terlouw
This site is registered on wpml.org as a development site. Switch to a production site key to remove this banner.