Van Bergenlaan 1A, te Wassenaar
€ 4.850.000,- k.k.Van Bergenlaan 1A, te Wassenaar
4SALE
Deze ruime en sfeervolle villa, onder architectuur van de gerenommeerde van Egmond architecten gebouwd, ligt grenzend aan de duinen in de rustige villawijk Rijksdorp. Dit familiehuis straalt warmte en elegantie uit en is perfect geschikt voor een groot gezin.
De villa ligt op loopafstand van de duinen, het strand van Wassenaar en bevindt zich nabij het beschermde natuurgebied Lentevreugd.
Voor gezinnen met kinderen biedt de omgeving genoeg basis- en middelbare (internationale) scholen. Op het gebied van sport is er volop keuze in onder meer tennis-, hockey- en golfverenigingen. De gezellige dorpskern van Wassenaar met zijn kwaliteitswinkels is op korte afstand. Nabijgelegen uitvalswegen zorgen voor uitstekende verbindingen met Den Haag, Leiden, Schiphol, Rotterdam en Amsterdam.
Houdt u van rust, privacy, sfeervol wonen en natuur? Dan is deze prachtige villa zeker een bezichtiging waard!
GOED OM TE WETEN
- Energielabel A;
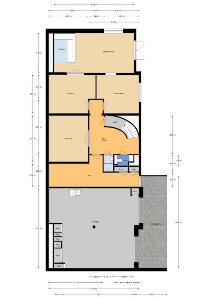
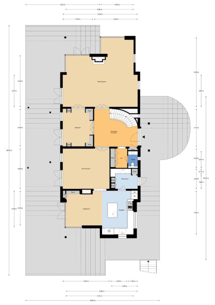
- Woonoppervlakte: 523 m²;
- Royaal perceel van 4.000 m²;
- Souterrain met compleet tweede woonvertrek;
- 5 slaapkamers, 4 badkamers;
- Master bedroom met inloopkast, badkamer en balkon;
- Inpandige garage waar meerdere auto's geparkeerd kunnen worden;
- Laadpaal op eigen oprit;
- Elektrisch toegangshek;
- Gelegen in de exclusieve villawijk Rijksdorp;
- Bouwjaar 2005.
Enthousiast over deze woning? Neem contact op met ons kantoor.
Wij plannen graag een afspraak met je in.
Je bent van harte welkom!
---
4SALE
This spacious and charming villa, designed by the renowned Van Egmond architects, is located adjacent to the dunes in the tranquil locality of Rijksdorp. This family home exudes warmth and elegance, making it perfect for a large family.
This villa is within walking distance of the dunes, Wassenaar’s beach and the protected nature reserve Lentevreugd.
For families with children, the area offers a variety of primary and secondary (international) schools. Sports enthusiasts will find plenty of options, including tennis, hockey, and golf clubs. The charming village center of Wassenaar, known for its high-quality shops, is just a short distance away. Convenient access to major roads ensures excellent connections to The Hague, Leiden, Schiphol Airport, Rotterdam, and Amsterdam.
Do you value peace, privacy, elegant living, and nature? Then this stunning villa is definitely worth viewing!
GOOD TO KNOW:
- Energy label A;
- Living space: 523 m²;
- Generous plot of 4.000 m²;
- Basement with a fully equipped second living area;
- 5 bedrooms, 4 bathrooms;
- Master bedroom with walk-in closet, bathroom, and balcony;
- Indoor garage for multiple cars;
- Private charging station on the driveway;
- Electric entrance gate;
- Located in the exclusive Rijksdorp;
- Built in 2005.
Interested in this property? Contact our office.
We'd be happy to schedule a viewing.
You're very welcome!
Afbeeldingen
Video
In de buurt